3月23日,记者从安宁区了解到,在完成专家评审和群众民意调查两个环节后,安宁区中央商务区、生态文化广场、后工业都市街区等三大片区城市设计国际竞赛最终结果出炉。

3月23日,记者从安宁区了解到,在完成专家评审和群众民意调查两个环节后,安宁区中央商务区、生态文化广场、后工业都市街区等三大片区城市设计国际竞赛最终结果出炉。
据了解,安宁区三大片区城市设计国际竞赛由兰州市城乡规划局、安宁区政府主办,兰州经济技术开发区安宁园区管委会承办。此次竞赛于去年7月启动,前期共收到65份项目建议书。经过审查与评选,最终确定21家参评单位入围开展城市设计方案编制,其中中央商务区(A标段)、生态文化广场(B标段)、后工业都市街区(C标段)各有参评成果8份、7份、6份。
今年3月9日至10日,安宁区邀请9位国内权威专家组成评审团,现场踏勘三大片区后举行专家评审会。专家评审结束后,安宁区又于3月13日至18日在兰州城市规划展览馆布展参评成果,并采用现场投票方式面向全社会进行民意调查。
据了解,此次城市设计国际竞赛由兰州恒信公证处全程监督,在综合两个环节评选结果后,最终确定出三大片区城市设计方案前5名(稿件中只展现了三个标段的各前3名)。其中:
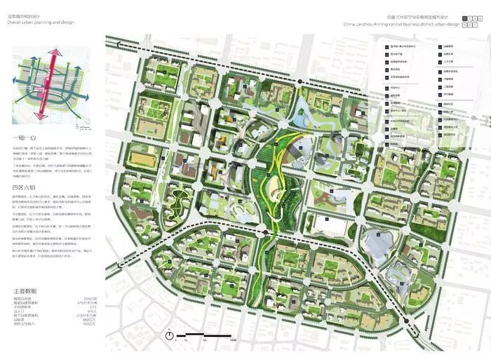
A标段(中央商务区)
城市设计方案前5名设计单位分别为:
上海同砚建筑规划设计有限公司
广东省城乡规划设计研究院
上海合城规划建筑设计有限公司
杭州市城市规划设计研究院
中国市政工程西北设计研究院有限公司
第1名
▼
第2名
▼
第3名
▼
B标段(生态文化广场)
前5名设计单位分别为:
上海同砚建筑规划设计有限公司
浙江大学城乡规划设计研究院有限公司
广州亚城规划设计研究院有限公司
中国市政工程西北设计研究院有限公司
重庆市设计院
第1名
▼
第2名
▼
第3名
▼
C标段(后工业都市街区)
前5名设计单位分别为:
上海同砚建筑规划设计有限公司
上海天华建筑设计有限公司保利(甘肃)实业投资有限公司
杭州市城市规划设计研究院
重庆市设计院
中外建华诚城市建筑规划设计有限公司
第1名
▼
第2名
▼
第3名
▼
美不美丽,惊不惊喜!
⭐

我要评论